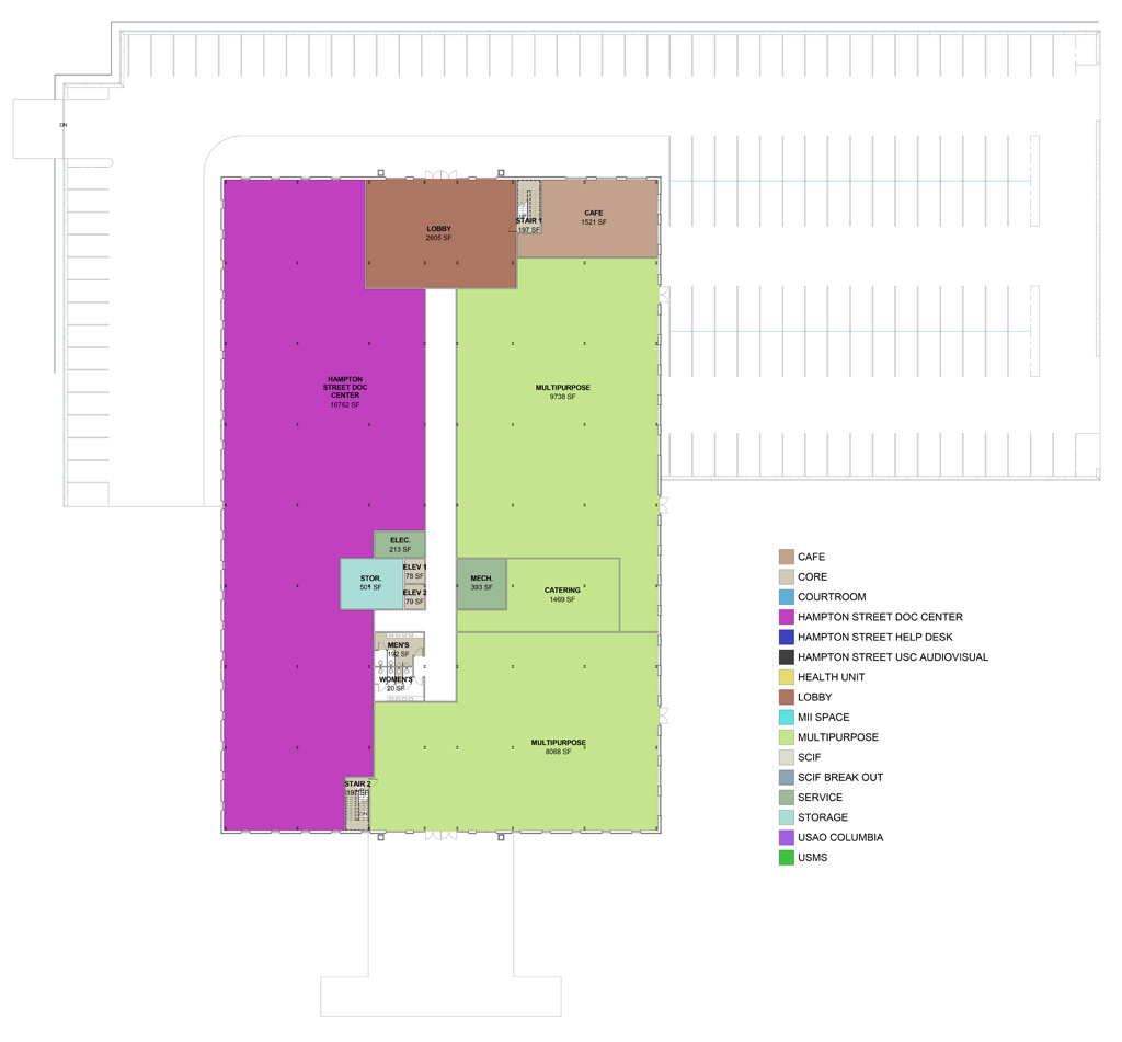
Model Based Estimating and Preconstruction
Use of early design BIM allows Rodgers to quickly quantify and extract materials for estimating and cost analysis. Our preconstruction team also uses virtual models to visually clarify project scopes and ensure an accurate cost projection.
Click an image to view slideshow:






